現在、天守台(本丸南東隅)では天守基礎の耐震補強工事を行っています。令和6(2024)年12月に着工したもので、令和7(2025)年11月末時点の進捗状況をお知らせします。
なお、工事についての詳細は広報ひろさき7月1日号
をご覧ください。
4本の基礎杭設置箇所について事前に発掘調査を実施しました。
北東杭及び南東杭設置箇所の発掘調査は令和6(2024)年度に、南西杭及び北西杭設置箇所の発掘調査は令和7(2025)年8月中旬に終了し、今後は発掘調査成果をとりまとめ、土器などの遺物の整理作業、発掘調査報告書の刊行作業に入ります。
今年度の発掘調査調査成果については、こちら
(7月4日時点)をご覧ください。
なお、今年度の発掘調査成果の速報を、青森県埋蔵文化財調査センター主催の「あおもり発掘フェア2025」
(12月20日土曜日及び12月21日日曜日、青森県総合社会教育センター、青森市)で報告、遺物展示を行う予定です。詳しくは、青森県埋蔵文化財調査センターホームページをご覧ください。
基礎杭設置箇所の人力による掘削作業(深さ12mまで)を8月下旬で終了し、現在は各設置箇所で機械による掘削作業(深さ35mまで)を行っています。掘削後は、鋼管と鉄筋かごを設置した上でコンクリート打設を行います。
機械掘削状況(遠景)
※写真奥の白い機械が掘削機です。写真左の橙色の機械で掘削した土を泥水状にして吸い上げています。
機械掘削状況(近景)
※機械掘削を行う際に、壁が崩れないように安定液で満たした状態で掘削し、壁を保護しながら掘削した泥水状の土を吸い上げています。
鋼管設置状況
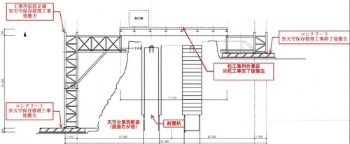
現在、天守を支える基礎杭と耐圧盤の設置と天守保存修理の為の作業構台の基礎が設置されています。作業構台は、天守台で機械掘削や基礎杭設置のための重機が載るためのものです。
なお、作業構台は天守曳戻し後に予定している天守保存修理工事の際に、天守を覆う素屋根の土台としても活用します。
令和7年3月
令和7年7月
作業構台(10月)
作業構台(11月)

作業構台イメージ図(図右が西・岩木山方向)